Apartamentos Turísticos
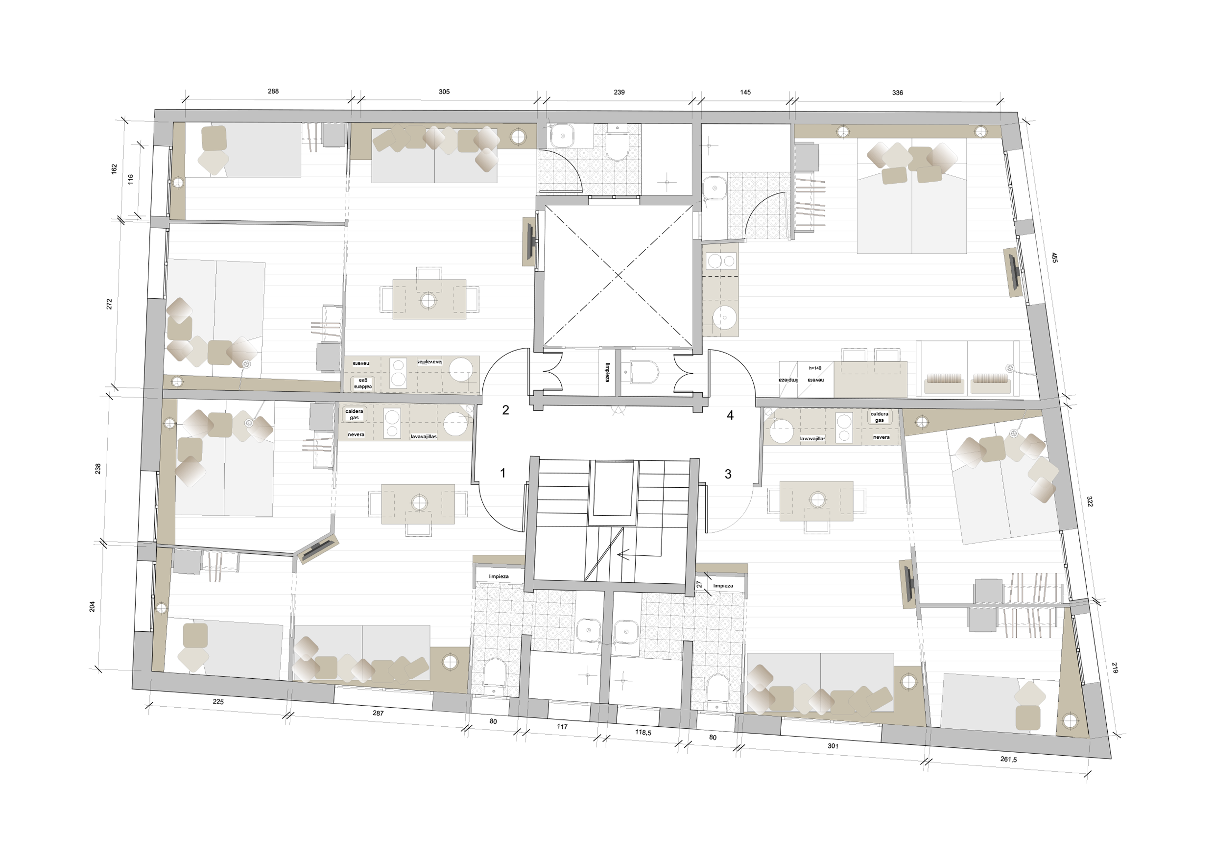
Bloque de viviendas destinado a apartamentos turísticos de corta y larga estancia. Cuatro tipologías de apartamento con distribuciones ligeramente diferentes pero acabados iguales.
Estudio Interiorismo
Vermell032
Ubicación
Barcelona
Año
2015



















