Promoción de viviendas
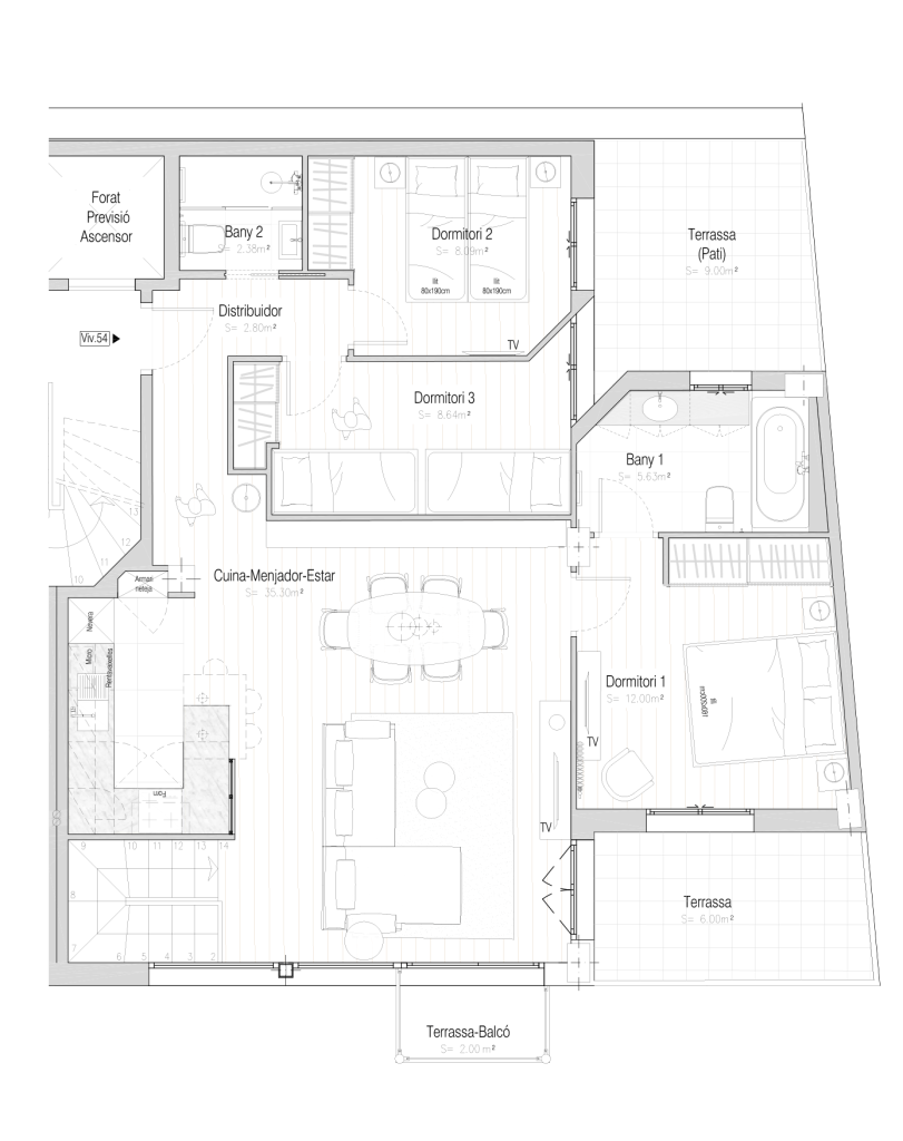
Viviendas destinadas a la venta, con 3 dormitorios, 2 baños, terraza o jardín.
Estudio Interiorismo
Vermell032
Ubicación
Port de la Selva, Girona.
Año
2020









Soy Natalia trilla proyectista y diseñadora de interiores
Viviendas destinadas a la venta, con 3 dormitorios, 2 baños, terraza o jardín.
Estudio Interiorismo
Vermell032
Ubicación
Port de la Selva, Girona.
Año
2020








